Edenhurst, Skelmersdale, Lancashire
- £290,000
Edenhurst, Skelmersdale, Lancashire
- £290,000
Overview
- Detached House
- 4
- 0
Description
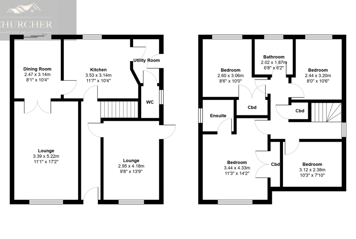
Churcher Estates are proud to present this beautifully presented four-bedroom detached home, set in a highly sought-after residential area of Skelmersdale. The property is well placed for local schools, shops, and commuter links. Families will appreciate the close proximity to highly regarded primary and secondary schools, while everyday amenities such as supermarkets, cafés, and leisure facilities are all within easy reach. For commuters, the property enjoys excellent access to the M58 and M6 motorway networks, providing quick links to Liverpool, Manchester, and beyond. Nearby, there are also plenty of green spaces, parks, and walking routes to enjoy, offering a balance between convenience and outdoor lifestyle.
The home offers a stylish and spacious living accommodation making this property an ideal family home.
As you step inside, the welcoming entrance hall sets the tone with its light and airy feel, guiding you naturally through the home. The main lounge sits to one side and provides a generous living area, easily large enough to accommodate a full family suite. This room flows directly into the dining space, creating an effortless connection that works just as well for relaxed everyday living as it does for hosting guests. The two areas complement one another beautifully, offering flexibility while still maintaining their own sense of identity.
The kitchen forms the true heart of the home. Thoughtfully designed, it combines sleek finishes with everyday functionality, offering an array of integrated appliances, excellent worktop space, and plentiful storage. Its position means it links seamlessly with both the dining area and hallway, cementing its role as a natural hub. Just off the kitchen, the utility room adds valuable extra space for laundry and organisation, while a conveniently placed downstairs WC serves the ground floor.
One of the standout features of the ground floor is the additional reception room, a highly versatile space that can be adapted to suit a variety of needs. Currently set up for business use, it could just as easily serve as a ground floor bedroom, a children’s playroom, or a dedicated home office. With plumbing already in place, there is also the option to add an en suite, making it an ideal solution for guests, extended family, or even creating an independent living area.
The first floor is home to four well-proportioned bedrooms, including a generous main bedroom suite with built-in storage and a modern en-suite shower room. The remaining bedrooms are served by a contemporary family bathroom, finished with neutral tiling and a stylish three-piece suite.
Externally, the property boasts excellent kerb appeal with a wide block-paved driveway providing ample off-road parking. The rear garden has been landscaped to offer a mix of lawn and patio areas, perfect for outdoor dining and family gatherings, with mature borders adding privacy and greenery.
This is a home that offers both space and style, combining practical family living with a high-quality finish throughout. This impressive home combines generous living space, modern finishes, and flexible rooms that can adapt to the changing needs of family life. With its stylish interiors, landscaped gardens, and versatile layout, this property is ready to welcome its next owners and provide them with a home to enjoy for years to come.
Viewings Recommended
Council Tax D
Tenure – Freehold
Details
Updated on December 11, 2025 at 10:01 am-
Property ID COX-69301718
-
Price £290,000
-
Bedrooms 4
-
Bathroom 0
-
Property Type Detached House
-
Property Status Sold STC
Edenhurst, Skelmersdale, Lancashire
Open on Google MapsSimilar Listings
Carvel Way, Ormskirk, Lancashire
- £450,000
Birch House, Hall Lane, Mawdesley, Ormskirk, Lancashire
- Offers in excess of £995,000
Contact Information
View Listings- Churcher Estates



























