Firbank Avenue, Tarleton, Preston, Lancashire
- Asking Price £650,000
Firbank Avenue, Tarleton, Preston, Lancashire
- Asking Price £650,000
Overview
- Detached House
- 5
- 3
Description
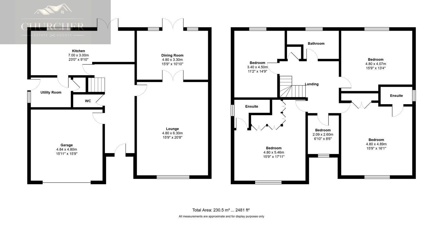
Churcher Estates are delighted to present this stunning five bedroom detached property, situated on the sought-after Firbank Avenue in the charming village of Tarleton. This home is perfectly located, offering convenient access to a range of local amenities, including shops and highly regarded schools, while also benefiting from excellent transport links to Preston, Ormskirk, and Southport via established major road networks.
As you step into the large open hallway, you’ll immediately notice the elegant neutral walls and stunning wooden floors that set a warm and welcoming tone throughout the home. A striking feature staircase takes centre stage in the hallway, adding to the property’s character.
The main lounge, located at the front of the house, boasts a large bay window that floods the room with natural light. Decorated in a neutral palette, the lounge features a cosy electric fireplace, creating an inviting ambiance for relaxation. Double doors seamlessly connect the lounge to the airy dining room at the rear, which comfortably accommodates an 8-seater dining table and enjoys delightful garden views through its double patio doors.
Conveniently located off the hallway is a downstairs WC, perfect for guests. The kitchen diner, running along the back of the property, showcases contemporary cream gloss units complemented by contrasting grey worktops and matching tiled flooring. Integrated appliances provide both style and functionality, while spotlights in the ceiling ensure a bright cooking space. This area also features dining space with double doors granting access to the garden, making it ideal for entertaining.
On the first floor, you will find four generously sized double bedrooms, all neutrally decorated with large windows that let in plenty of light. Both the main and second bedrooms feature ensuite bathrooms and fitted wardrobes, offering added comfort and convenience. The versatile fifth bedroom is perfect for use as a home office. A family bathroom on this floor includes a separate bath and shower, sink, and toilet for additional practicality.
Externally, the rear of the property boasts a patio that spans the full width of the house, leading to a well-maintained lawn with high hedges for privacy-perfect for outdoor gatherings. To the front, a spacious driveway accommodates multiple cars and leads to a garage with internal access from the hallway. A large lawn graces the front garden, with a side gate providing easy access to the rear.
This beautifully presented house combines style and practicality, making it an excellent choice for modern family living and is a must see.
NO CHAIN
Viewings available upon request.
FREEHOLD
COUNCIL TAX BAND G
Details
Updated on December 4, 2025 at 8:00 pm-
Property ID COX-43742307
-
Price Asking Price £650,000
-
Bedrooms 5
-
Bathrooms 3
-
Property Type Detached House
-
Property Status Sold STC
Firbank Avenue, Tarleton, Preston, Lancashire
Open on Google MapsSimilar Listings
Birch House, Hall Lane, Mawdesley, Ormskirk, Lancashire
- Offers in excess of £995,000
Contact Information
View Listings- Churcher Estates










































